欢迎光临浙江华徽电气有限公司官网!

产品展示

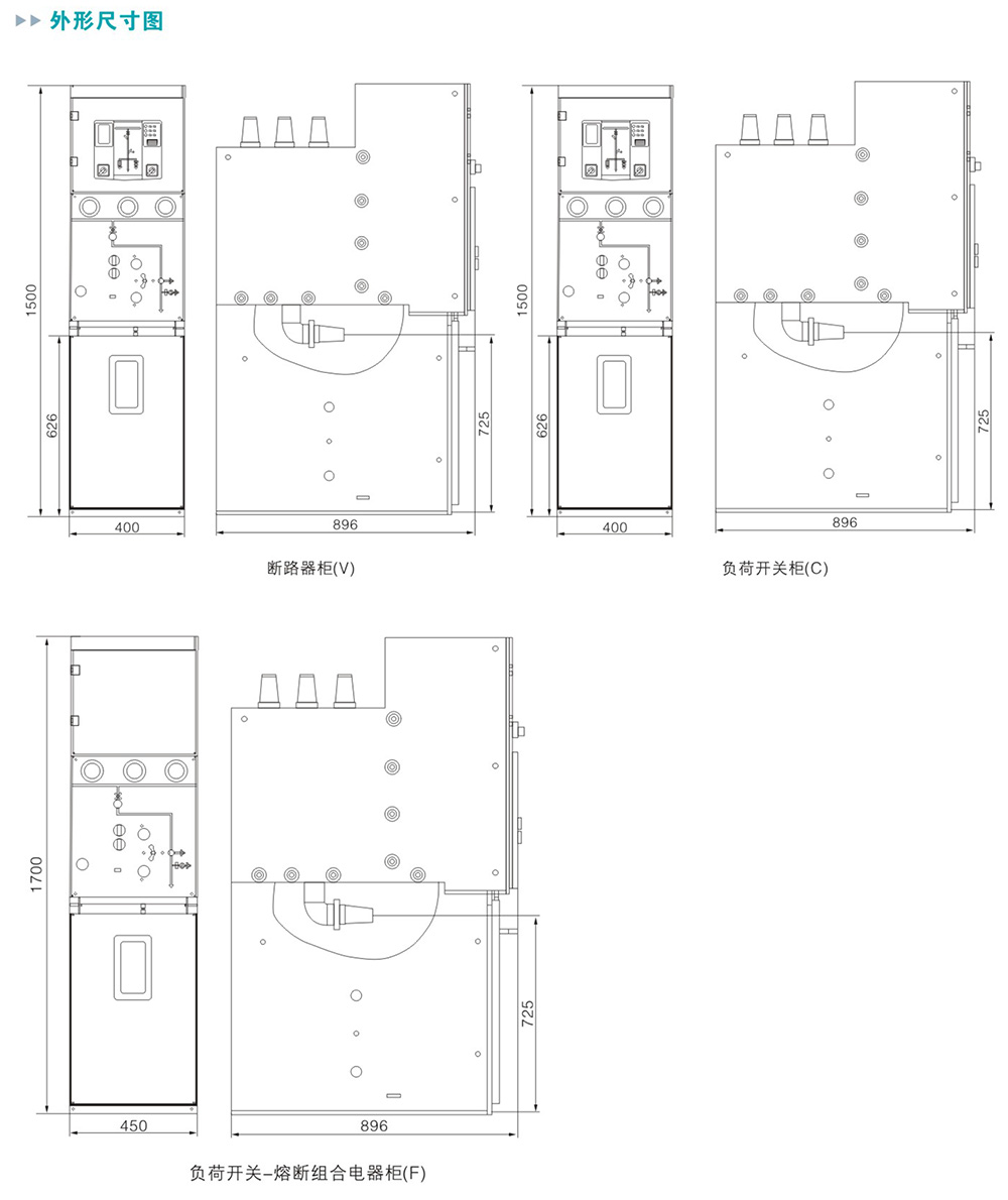
当前位置:主页 > 产品展示 > 成套类 > 高压成套开关设备 > GTHUSM6-12系列固体绝缘环网柜

GTHUSM6-12系列固体绝缘环网柜

更新时间:2022-12-01 11:24:56

浙江华徽电气生产的GTHUSM6-12系列固体绝缘环网柜固体绝缘环网柜( Solid - Insulated Ring Main Units) 是采用固体绝缘材料作为主绝缘介质的环网柜。 将真空灭弧室及其导电连接、隔离开关、接地开关、主母线、分支母线等主导电回路单一或组合后用固体绝缘介质包覆封装为一个或几个具有一定功能、可再次组合或扩展的具备全绝缘、全密封性能的模块,人可触及的模块表面涂覆有导电或半导电屏蔽层并可直接可靠接地的环网柜。